Woning te koop in Eindhoven

€ 462.500
Reinkenstraat 31 /
5654 LA Eindhoven
Nieuw

Ruime en uitstekend verzorgde tussenwoning op een zeer gunstig gelegen plek aan een rustige straat voor lokaal verkeer in Eindhoven Zuid, stadsdeel Gestel.

Ruime en uitstekend verzorgde tussenwoning op een zeer gunstig gelegen plek aan een rustige straat voor lokaal verkeer in Eindhoven Zuid, stadsdeel Gestel.

Deze woning is aan de achterzijde voorzien van een overdekt terras/lounge ruimte en is recent compleet gerenoveerd en gemoderniseerd.

De omgeving wordt gekenmerkt door groen- en speelvoorzieningen, allen in een gemoedelijke sfeer.
Op korte afstand vind je diverse winkels, supermarkten, scholen en sportfaciliteiten.
Dankzij de gunstige ligging zijn zowel het centrum van Eindhoven als de belangrijke uitvalswegen eenvoudig en snel bereikbaar.
De snelweg A2/A67 met richtingen naar Amsterdam, Antwerpen, Maastricht en Venlo ligt zeer nabij.
Bovendien bevindt zich in de directe omgeving een concentratie van grote internationale bedrijven, de High Tech Campus, wat de wijk ook ideaal maakt voor (expat)professionals.
Natuur- en recreatiegebieden liggen op fietsafstand, zodat je optimaal profiteert van zowel stedelijke voorzieningen als een groene leefomgeving.

WONING

Begane grond:

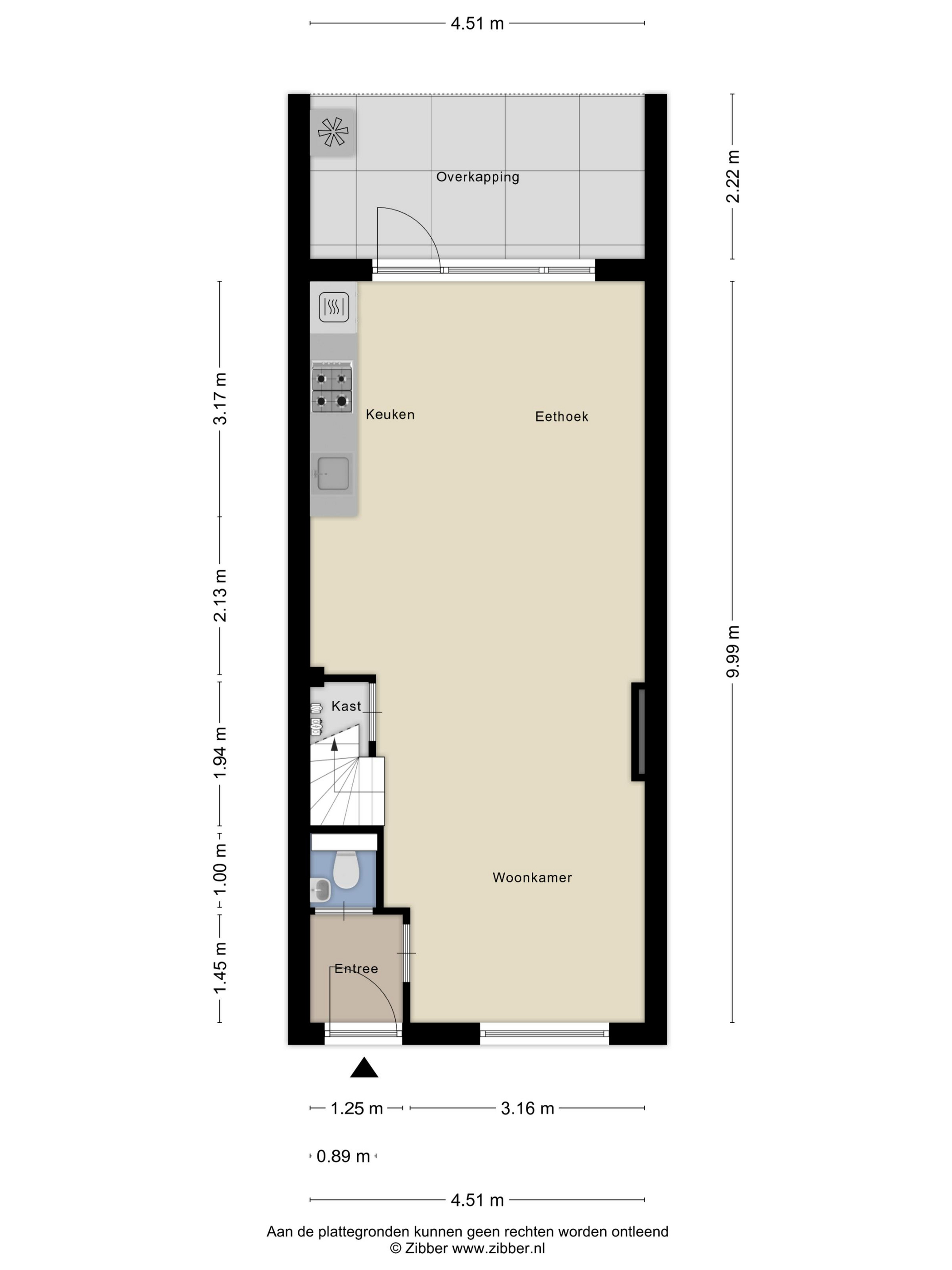
Entree met een prettige binnenkomst in de aparte hal met toegang tot meterkast en toilet.
De ruime woonkamer is uitgebouwd waardoor er gelegenheid is voor een royale zithoek en een eethoek.
De open keuken is voorzien van de benodigde inbouwapparatuur zoals gasfornuis, vaatwasser, combi-oven/magnetron, koelkast en vrieskast.
Vanuit de keuken wordt direct het gezellige overdekte terras/lounge bereikt.
Via de ruime, onderhoudsarme- en volledig omheinde achtertuin bereikt u de garage en een separate berging voor fietsen, scooter of motor.

Eerste verdieping:

Op de eerste verdieping bevinden zich een drietal slaapkamers waarvan er thans één in gebruik is als walk-in closet.
De moderne badkamer is voorzien van een inloopdouche en en wastafelcombinatie.

Tweede verdieping:

De tweede verdieping is voorzien van een royale dakkapel en ingericht als kantoor/werk/hobbykamer, maar kan ook perfect als 4e slaapkamer fungeren.

BIJZONDERHEDEN:

- Bouwjaar 1947, recent volledig gerenoveerd/gemoderniseerd
- Volledig instapklaar; verhuizen zonder klussen!
- Volledig voorzien van kunststof kozijnen met dubbel glas
- Airco aanwezig
- Oostelijk georiënteerde achtertuin
- Ruime opslag / garage met eigen achterom
- Separate berging voor fietsen, scooter of motor
- Scholen, winkels en speelgelegenheden op loopafstand
- Uitstekend gelegen, temidden van de Brainport Regio
- Goede infrastructuur:
-    10 fietsminuten tot centrum Eindhoven
-    20 fietsminuten tot Maxima Medisch Centrum / ASML
- 10 fietsminuten tot de High Tech Campus





Woning te koop / Eindhoven

Details

Bouwjaar 1947
Bebouwing Rijwoning
Algemene staat Instapklaar
Beschikbaar In overleg
Oriëntatie tuin Noord-Oost
Totale opp. grond 150 m²
Bewoonbare opp. 108 m²
Oppervlakte gebouwgebonden buitenruimte 5 m²
Oppervlakte externe berging 16 m²

Energie

EPC 273,11 kWh/m2/jaar
EPC ref. D
Label epc waarde d
Woning te koop / Eindhoven

Indeling

Gelijkvloers

Woonkamer
35 m²
Keuken
Badkamer
4x Slaapkamer
WC
Garage
Tuin

Ruimtelijke ordening

Stedenbouwkundige bestemming Niet ingegeven
Dagvaarding voor stedenbouwkundige overtreding Niet ingegeven
Bouwvergunning Niet ingegeven
Verkavelingsvergunning Niet ingegeven
Voorkooprecht Neen
Beschermd erfgoed Niet ingegeven
Renovatieplicht Niet ingegeven

Comfort

  • Aardgas
  • Airco
  • Elektriciteit
  • Fiber
  • Internet
  • Kabel TV
  • Kabel TV
  • Riolering
  • Rolluiken
  • Stadswater
  • Telefoon
  • Zonnewering
Woning te koop / Eindhoven
Woning te koop / Eindhoven
Woning te koop / Eindhoven
Woning te koop / Eindhoven
Woning te koop / Eindhoven
Woning te koop / Eindhoven
Woning te koop / Eindhoven
Woning te koop / Eindhoven
Woning te koop / Eindhoven
Woning te koop / Eindhoven
Woning te koop / Eindhoven
Woning te koop / Eindhoven
Woning te koop / Eindhoven
Woning te koop / Eindhoven
Woning te koop / Eindhoven
Woning te koop / Eindhoven
Woning te koop / Eindhoven
Woning te koop / Eindhoven
Woning te koop / Eindhoven
Woning te koop / Eindhoven
Woning te koop / Eindhoven
Woning te koop / Eindhoven
Woning te koop / Eindhoven
Woning te koop / Eindhoven
Woning te koop / Eindhoven
Woning te koop / Eindhoven
Woning te koop / Eindhoven

Interesse? Contacteer ons