House for sale in Helmond

€ 495.000
Gladiolenstraat 6 /
5701 EL Helmond

Instapklare halfvrijstaande hoekwoning met 3/4 slaapkamers en multifunctionele garage

Uitstekend afgewerkte halfvrijstaande hoekwoning gelegen in de populaire woonwijk Helmond-Oost die bekend staat om haar groene karakter, goede bereikbaarheid en rustige leefomgeving.
Deze gezinswoning biedt naast de 3 bestaande slaapkamers op de eerste verdieping de mogelijkheid om op de tweede verdieping (met vaste trap) een 4e slaapkamer met extra berging te creëren. Achter het huis bevindt zich een ruime multifunctionele garage met keuken, welke geschikt kan worden gemaakt als zorgwoning, kantoor, praktijk en/of hobbyruimte. Buiten is er een onderhoudsvriendelijke en betegelde tuin aanwezig met overdekte tuinlounge uitgerust met sfeerbepalende ledverlichting.
De directe omgeving bestaat uit een mix van gezinswoningen, brede straten en ruime percelen met voldoende parkeergelegenheid. Op loopafstand vind je diverse voorzieningen zoals basisscholen, speelplekken, sportfaciliteiten en supermarkten. Terwijl je op enkele fietsmintuten in het gezellige centrum van Helmond met NS station bent.
De wijk is uitstekend ontsloten via de N270 en A67, waardoor steden als Eindhoven, Venlo en de Brainportregio goed bereikbaar zijn

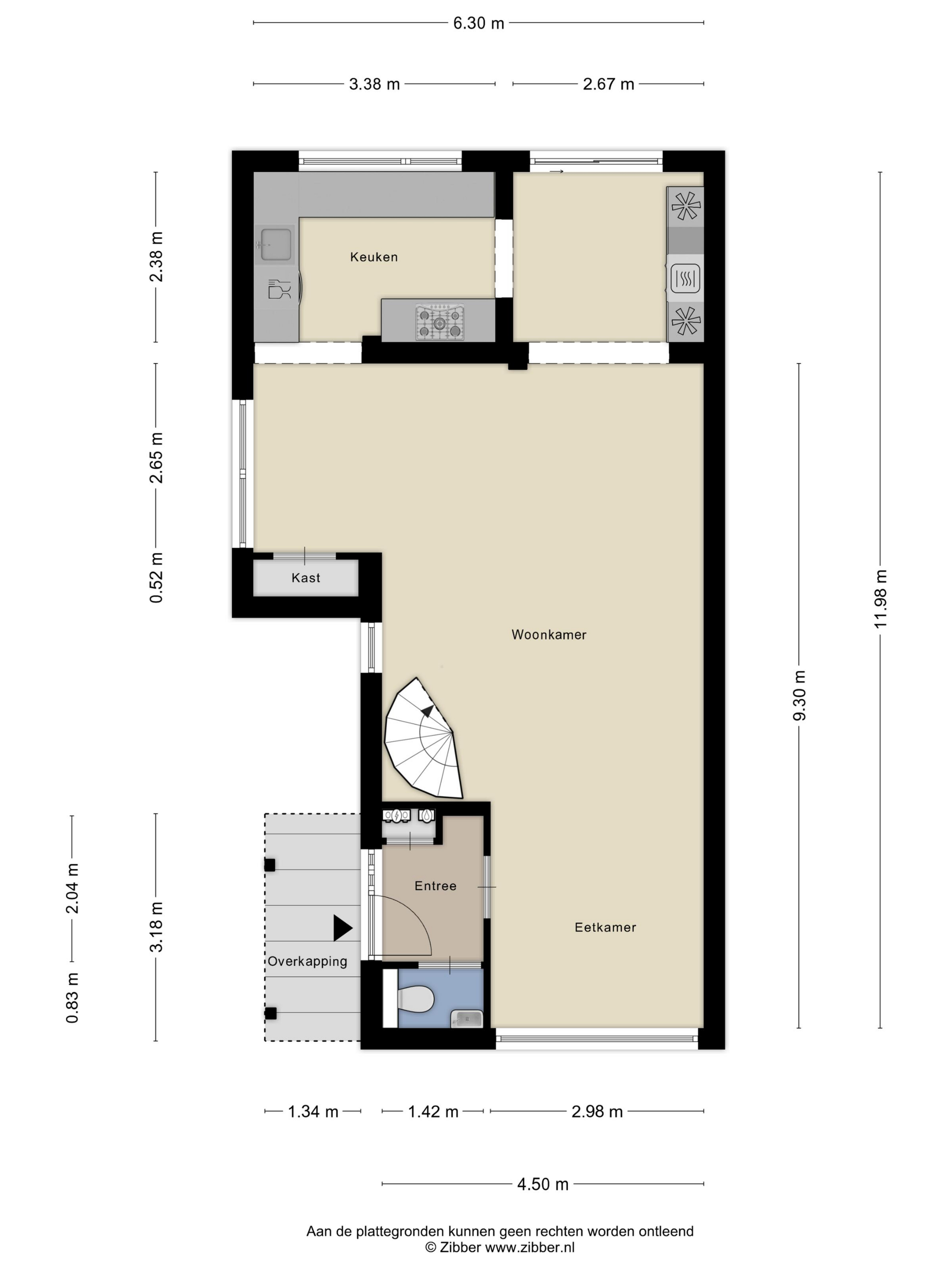
INDELING

Begane grond: hal, toilet, woonkamer, keuken, terras, garage
1ste verdieping: overloop, badkamer met toilet, 3 slaapkamers
2de verdieping: te creëren 4e slaapkamer met extra berging.

BIJZONDERHEDEN:

•    Toplocatie in de buurt Beisterveld, direct aan de uitvalsweg, Wijk 11, Helmond-Oost;
•    Dubbel glas met kunststof kozijnen dat zorgt voor uitstekende isolatie, zowel geluids- als warmte-isolatie;
•    Volledig gerenoveerd en vloerverwarming;
•    Multifunctionele garage, is aangemeld bij gemeente en vergunningsvrij, inclusief vaste kasten met inbouwkeuken;
•    Touch screen bedieningspanelen voor Led;
•    Extra opbergruimte ca.10 m2 boven keuken en keukenkast
•    Eventuele overname van huurovereenkomsten van 2 garageboxen
•    Waterkranen aan buitengevel zijn via een App te bedienen
•    Vaste trap aanwezig naar 2e verdieping
•    4e Slaapkamer met extra berging mogelijk op 2e verdieping
•    Kunststof kozijnen met dubbele beglazing A+++
•    Airco in woonkamer
•    Vloerverwarming begane grond
•    Overal rolluiken (ook bij garage)
•    Alle dagelijkse voorzieningen op loopafstand
•    Enkele fietsminuten van centrum Helmond met NS station
•    Uitstekende bereikbaarheid via N270, A67
Dwelling for sale / Helmond

Details

Construction year 1983
Building type Semi Detached
Condition Luxury finish
Available In consultation
Area ground 257 m²
Area build 129 m²

Energy

EPC 4.527 kWh/m2/year
EPC ref. 173028834
Lable epc value c
Dwelling for sale / Helmond

Layout of the house

Ground floor

Livingroom
Diningroom
Kitchen
Bathroom
3x Bedroom
2x Toilet
Attick
Terrace
Garage
Parking

Spatial planning

Town planning Not entered
Proceedings for planning offense Not entered
Building license Not entered
Subdivision permit Not entered
Right of first refusal No
Protected heritage Not entered
Renovation obligation Not entered

Financial information

Price € 495.000

Downloads

Comfort

  • City water
  • Natural gas
Dwelling for sale / Helmond
Dwelling for sale / Helmond
Dwelling for sale / Helmond
Dwelling for sale / Helmond
Dwelling for sale / Helmond
Dwelling for sale / Helmond
Dwelling for sale / Helmond
Dwelling for sale / Helmond
Dwelling for sale / Helmond
Dwelling for sale / Helmond
Dwelling for sale / Helmond
Dwelling for sale / Helmond
Dwelling for sale / Helmond
Dwelling for sale / Helmond
Dwelling for sale / Helmond
Dwelling for sale / Helmond
Dwelling for sale / Helmond

Interested? Contact us

Please fill in a correct first name.
Please fill in a correct name.
Please fill in a correct e-mail address.
Please fill in a correct phone and/or mobile number.